4503 Lee Boulevard, LEHIGH ACRES, FL

$30,000

Previous Next

2,166

Square feet

1.50

Acres

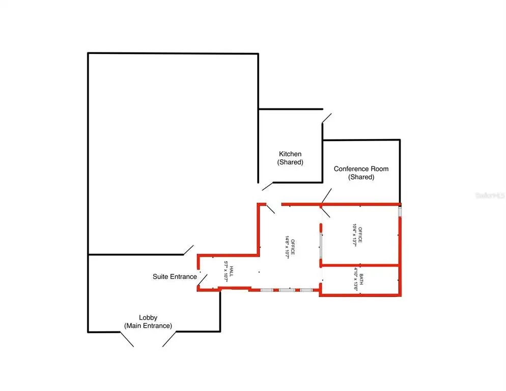
About 4503 Lee Boulevard

Turnkey Professional Office Suite – Lee Blvd | All Utilities Included - Turnkey 420 sq. ft. private office suite available for lease in a high-visibility Lee Boulevard location. Ideal for small businesses or professionals seeking a professional, efficient workspace with utilities included. This suite is part of a two-unit commercial building, originally designed as a model home and now fully converted for office use. The layout features a main office (14’8” × 10’7”), a secondary office (10’4” × 13’7”), a private bathroom (4’10” × 13’6”), and a connecting hall (5’7” × 10’7”), totaling approximately 420 sq. ft. Tenants also enjoy shared access to a reception area with front-desk receptionist, a conference room (10’11” × 13’5”), and a remodeled kitchen, providing a complete, professional environment for client meetings and daily operations. Water, electric, internet, and weekly cleaning are included in the lease, simplifying operations and keeping expenses predictable. The property offers ample on-site parking and strong exposure from Lee Boulevard, one of Lehigh Acres’ busiest commercial corridors. Please note: this listing is for one private office suite within a shared commercial building—not the entire property. All common areas, including the lobby, reception, kitchen, and conference room, are shared among tenants. Ideal for professionals such as attorneys, title companies, insurance agents, consultants, or small business owners seeking a professional, low-maintenance, and cost-efficient workspace in a prime location. With modern amenities, utilities included, and a high-traffic setting, this suite provides an exceptional opportunity to establish or expand your professional presence in Southwest Florida.

Features of 4503 Lee Boulevard

MLS® # C7506403
Price $30,000
Square Footage 2,166
Acres 1.50
Year Built 1996
Type Commercial Lease
Sub-Type Mixed Use
Status Active
Disney 121.20 miles

Community Information

Address 4503 Lee Boulevard
Area Lehigh Acres
Subdivision LEHIGH ACRES SOUTH 01/2 SEC 28 44 26 UNITS 01 08
City LEHIGH ACRES
County Lee
State FL
Zip Code 33971-1628

Amenities

Parking 6 to 12 Spaces
Is Waterfront No
Has Pool No
Water Type Public
Sewer Type Public Sewer

Interior

Appliances Microwave, Refrigerator
Heating Central
Cooling Central Air
Fireplace No
# of Stories 1

Exterior

Roof Shingle
Foundation Slab
Front Exposure North

Additional Information

Taxes $6,554
Date Listed March 6th, 2025
Days on Market 216
Zoning RS-1
Foreclosure No
Short Sale No
RE / Bank Owned No

Listing Details

OfficeCENTURY 21 SUNBELT REALTY

Listing Map

Request a Showing

Provide a valid email address.
When would you like to view this property?